Улаанбаатар хотод учирч болзошгүй хамгийн өндөр эрсдэлтэй гамшиг бол газар хөдлөлт юм. Хот орчимд 2005 он хүртэл жилд дунджаар 200 гаруй газар хөдлөлт бүртгэгддэг байсан бол 2012 онд дөрөв дахин, 2013 онд 10 дахин олон бүртгэгдсэн нь Улаанбаатар хот орчмын газар хөдлөлтийн идэвхжилт нэмэгдэж байгааг харуулж байна.
2023 онд Улаанбаатар хот орчимд нийт 1080 удаагийн газар хөдлөлт бүртгэгдсэнээс хүнд мэдрэгдэхүйц буюу 3-4.9 магнитудын газар хөдлөлт долоон удаа бүртгэгдсэн байна.
Япон Улсын ЖАЙКА олон улсын байгууллагаас “Газар хөдлөлтийн гамшгийн эрсдэлээс сэргийлэх чадавхыг бэхжүүлэх төсөл”-ийн хүрээнд 2012-2013 онд Улаанбаатар хотын газар хөдлөлтийн гамшгийн эрсдэлийн үнэлгээг хийсэн. Тус үнэлгээгээр төвийн зургаан дүүргийн барилгын нурах магадлал, хохирлын хэмжээг 47.8 хувь, гал түймэр, газар хөдлөлтөд гэр хорооллын 80 хувь нь өртөх магадлалтайг тогтоосон байна.
Энэ нь гэр хороолол, зуслангийн бүсийн амины орон сууц болон байшин сууц нь норм, дүрэм, стандартын дагуу баригддаггүйтэй холбоотой юм. Иймд НЗДТГ, Хот байгуулалт, хөгжлийн газар хамтран газар хөдлөлтийн гамшгийн эрсдэлийг бууруулах, урьдчилан сэргийлэх, гамшгийг тэсвэрлэх чадавхыг бэхжүүлэх хүрээнд гамшигт тэсвэртэй, эрчим хүчний хэмнэлттэй, норм, дүрэм, стандартын шаардлага хангасан, орчин үеийн амьдралын тав тухыг хангасан амины орон сууцны жишиг зургийг боловсрууллаа.

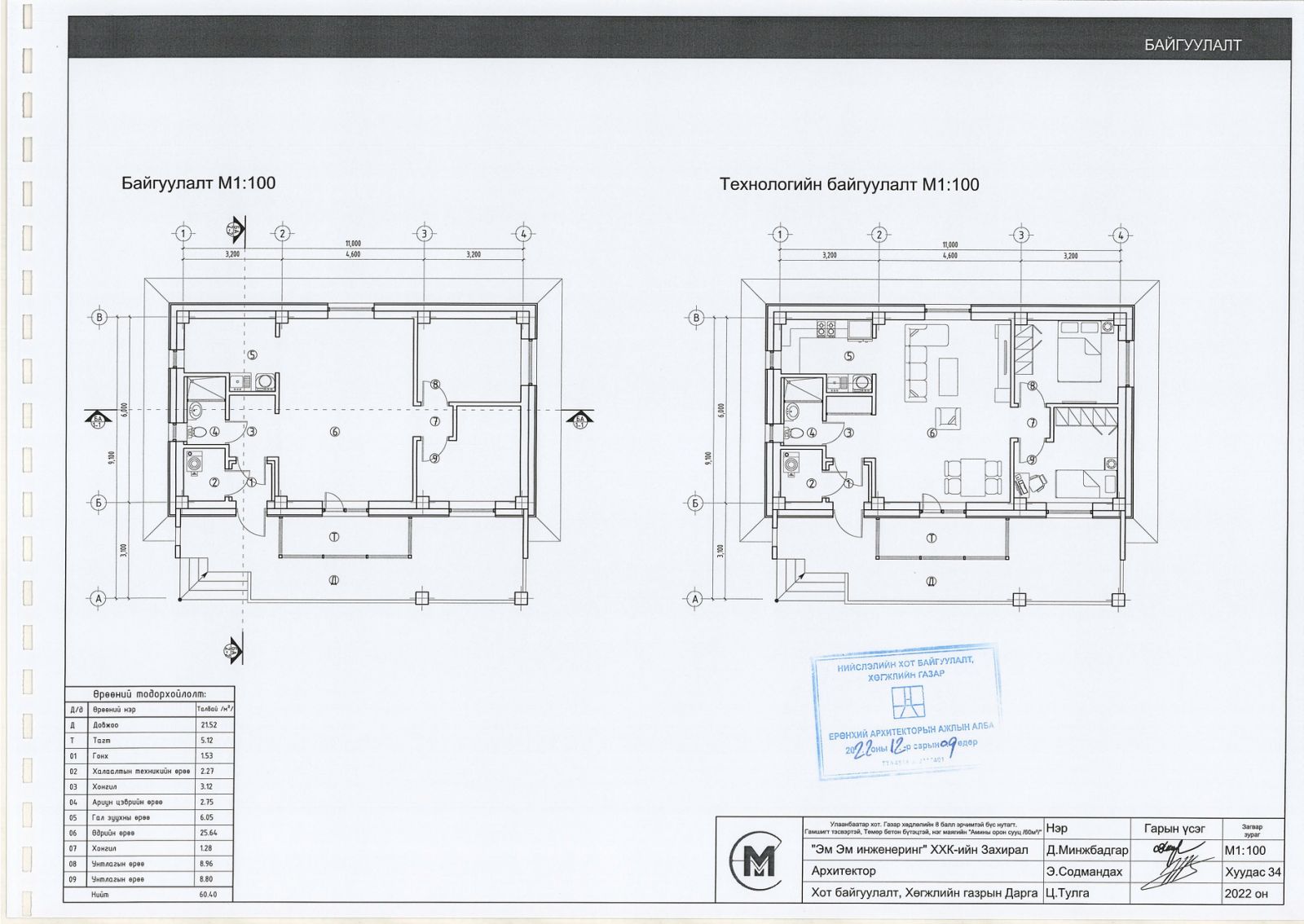
Тус өрөгт бүтээц болон төмөр бетон бүтээцтэй 40, 60, 80, 100, 120 м2 талбайтай иж бүрэн ажлын зургийг боловсруулж, шинээр амины орон сууц барих иргэн, хуулийн этгээдэд үнэ төлбөргүй ашиглуулахад бэлэн болоод байна.
Түүнчлэн арилжааны банкнаас амины ногоон орон сууцны зээл олгоход тавьдаг шаардлагад ажлын зургийг шаарддаг тул дээрх зургийг ашиглах боломжтой юм. Тус зургийг авч ашиглах болон холбоотой мэдээллийг авахыг хүсвэл Хот байгуулалт, хөгжлийн газрын 11-315355 утсаар холбогдож болно.